5月19號,“2022(第二屆)全國板材用石英砂供需洽談會”將在廣東·佛山南海保利皇冠假日酒店舉行,廣西柳州五泰科技邀您一同參加。
展位號:B3

石英砂專用離心脫酸、脫水設備簡介

我公司生產的自動連續高效石英砂專用離心脫水機,具有脫水后砂含水率低(5-8%)、生產連續可控、產量大(5- 25噸/小時)、運行成本低(5-7元/噸)、運行平穩、噪音 低、產品成熟(已有多個廠家使用)、耐磨耐腐蝕(主體使用 316L不銹鋼、與物料接觸部份采用氧化鋁鋯、硅膠、聚氨酯 等材質)等特點。
該離心機既可用于玻璃砂、板材砂、高純砂烘干前的石英砂脫水(常規手段脫水后進烘干前水分仍有12-15%,用離心 脫水機后水分5-8%,水分降低,烘干成本也隨之降低),可 實現玻璃砂、板材砂/高純砂生產設計的簡約化、車間化、集 中控制智能化,提高了生產的連續性和可控性;也可用于石 英砂酸洗后的脫酸及脫水(用該離心機可直脫帶酸液的石英 砂至5-8%,進入下一臺離心脫水機前將石英砂、水配至1:1左 右,再進入離心機脫水至5-8%),可大大縮短石英砂的脫 酸、脫水時間,降低酸液的耗量及成本、提高酸洗后石英砂的潔凈度。
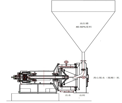
石英砂脫酸、脫水解決方案

酸洗罐內酸洗合格的石英砂和酸液一同進入離心 脫酸機,在高速離心力的作用下,酸液和石英砂分 離,酸液回收使用,而脫酸至5 - 8 %的石英砂經滾筒 洗砂機初步水洗后送入高位槽(砂:水= 1 : 1),從 高 位 槽 底 部 出 來 的 石 英 砂 和 水 一 同 進 入 離 心 脫 水 機,在離心力的作用下,石英砂脫水至5 - 8 %,即可送入烘干機進行烘干處理
石英砂尾泥脫水設備簡介

當尾泥懸浮液進入離心機轉鼓腔后,被高速旋轉的轉鼓 帶動一起高速旋轉,因而懸浮液將受到強大的離心力作用。 懸浮液中的固相顆粒由于比重大,所受離心力也較大,因此 固相貼近于鼓壁,形成料環層,而液相密度小,所受離心力 亦小,在固環層內側形成液環層。由于螺旋刮刀與轉鼓的轉 速不同(螺旋滯后),因此螺旋刮刀將沉積在轉鼓內壁的固 相推向轉鼓小端渣口排出,而液相則從轉鼓大端的溢流口排出。




















